Токарно-винторезный станок ГС526У

Акция! Оборудование со скидкой.
Продажа станков ГС526У в Москве с доставкой по России. Универсальный токарно-винторезный станок ГС526У применяют при работе с цилиндрическими и коническими заготовками. Индекс «У» в названиие модели, означает, что станок оснащен фартуком со встроенным двигателем ускоренного перемещения и коробкой подач, обеспечивающей возможность нарезания резьбы 11 и 19 ниток на дюйм без замены шестерен в коробке передач. Изготовитель токарного станка ГС526У - Гомельский завод станочных узлов ГЗСУ.
Станок ГС526У повышенной точности позволяет эффективно выполнять операции точения, нарезки резьбы, растачивания и другие.
Модификации с дополнительными индексами: С, В, А, Г, Д, Л, М, Ц, РЦ, Е расширяют технологические возможности базового исполнения.
- «С» - оснащен сверлильно-фрезерным приспособлением для сверлильных и фрезерных работ и нарезания резьбы;
- «В» - станок имеет возможность с увеличенным наибольшим диаметром обработки устанавливаемой заготовки над станиной 630 мм, обрабатываемой заготовки над суппортом 420 мм;
- «А» - станок имеет направляющие станины с измененным профилем;
- «Г» - станок с наличием выемки в станине;
- «Д» - станок имеет увеличенный диаметр цилиндрического отверстия в шпинделе;
- «Л» - имеет цену деления лимба поперечного перемещения 0,02 мм;
- «М» - станок оснащен механизированным приводом верхней части суппортной группы;
- Ц – оснащен устройством цифровой индикации (УЦИ);
- РЦ - станок оснащен устройством цифровой индексации и имеет бесступенчатое регулирование частоты вращения шпинделя;
- Е - станок имеет маркировку «СЕ», что означает соответствие требованиям безопасности Директив ЕС.
Станина литой формы придает дополнительную жесткость и устойчивость станку. Наличие фартука со встроенным приводом для лучшей работы оборудования на ускоренном ходу.
| Параметры | Значение |
|
|---|---|---|
| Диаметр отверстия в шпинделя, мм | 55 |
|
| Наибольший диаметр обрабатываемого изделия, мм | над станиной | 500 |
| над суппортом | 275 |
|
| Наибольшая длина обрабатываемого изделия, мм | 1000 |
|
| Конус шпинделя | ГОСТ 13214 Морзе 6 |
|
| Конец шпинделя | 6К ГОСТ 12593, фланец D=170 мм |
|
| Количество скоростей шпинделя: | прямого вращения | 22 |
| обратного вращения | 22 |
|
| Частота вращения шпинделя, об/мин | 16...2000 |
|
| Количество подач суппорта | продольных | 24 |
| поперечных | 24 |
|
| Пределы рабочих подач суппорта | продольных, мм/об | 0,05...2,8 |
| поперечных, мм/мин | 0,025...1,4 |
|
| Пределы шагов нарезаемых резьб | метрических, мм | 0,05...112 |
| модульных, мм | 0,05...112 |
|
| дюймовых, ниток на дюйм | 56...0,5 |
|
| питчевых, дюйм | 56...0,5 |
|
| Род тока питающей сети | переменный, трехфазный |
|
| Класс точности по ГОСТ 8 | П |
|
| Корректированный уровень звуковой мощности, дБа | 97 |
|
| Мощность электродвигателя главного привода, кВт | 11 |
|
| Мощность привода быстрых перемещений, кВт | 0,37 |
|
| Мощность привода охлаждения, кВт | 0,18 |
|
| Габаритные размеры, мм | 2800х1265х1485 |
|
| Масса, кг | 3100 |
|
Фартук станка ГС526У
Транспортировка токарно-винторезного станка ГС526У
| Наименование характеристики | Значение РМЦ = 1000 мм |
|---|---|
| Длина, мм | 2800 |
| Ширина, мм | 1265 |
| Высота, мм | 1360 |
| Масса, кг | 3100 |
Токарный станок ГС526У основные узлы
| № | Наименование |
|---|---|
| 1 | Электрооборудование |
| 2 | Бабка шпиндельная |
| 3 | Ограждение патрона |
| 4 | Охлаждение |
| 5 | Резцедержатель |
| 6 | Ограждение суппорта |
| 7 | Верхняя и средняя часть суппорта |
| 8 | Каретка и нижняя часть суппорта |
| 9 | Бабка задняя |
| 10 | Станина и основание |
| 11 | Фартук |
| 12 | Управление фрикционом |
| 13 | Коробка подач |
| 14 | Система смазки |
| 15 | Установка моторная |
| 16 | Коробка скоростей |
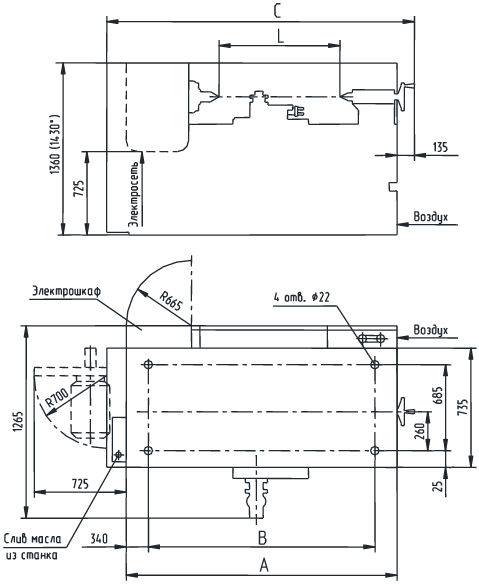
ГС526У с цельным основанием, установочный чертеж
| L, мм | A, мм | В, мм | С, мм |
|---|---|---|---|
| 1000 | 2430 | 1890 | 2800 |
