Плоскошлифовальный станок 3Л722В

Плоскошлифовальный станок 3Л722В является универсальным оборудованием, которое предназначено для точности обработки плоских и фасонных поверхностей. Данная модель выполнена с горизонтальным расположением шпинделя.
Основные элементы: станина, шпиндель, суппорт, салазки, шлифовальная головка, прямоугольный стол.
К основным показателям режима резания станка 3Л722В относят: скорость круга, скорость подачи заготовки, глубина шлифования.
Особенности конструции:
- дистанционное управление скоростью и местом хода стола, стойки;
- использование винтовых пар качения;
- централизованная система смазки.
Преимущество станка 3Л722В заключается в регулирование скорости и места хода стола и стойки осуществляется дистанционно.
На оборудовании выполняют черновое и чистовое шлифование, для первой операции оптимально выбрать режим с максимальной глубиной резания, а для второй - минимальной. При таком подходе станок позволяет снизить шероховатость обрабатываемой заготовки.
Станок 3Л722В имеет в наличие УЦИ (устройство цифровой индикации), которое позволяет визуально контролировать величину перемещения шлифовальной бабки в процессе работы.
Комплектация синусными плитами, позволяет обрабатывать заготовки под необходимыми углами.
Станок ОШ-400 является аналогом данной модели.
| Параметр | Значение |
|
|---|---|---|
| Класс точности | В |
|
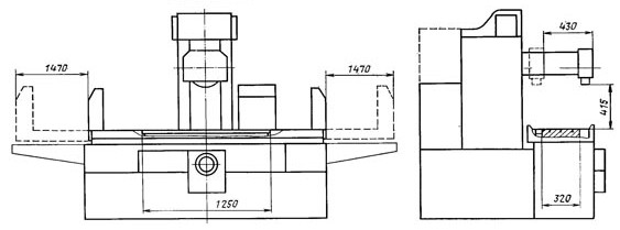
| Размеры рабочей поверхности стола, мм | 1250х320 |
|
| Рабочие подачи: | стола, мм | 2...35 |
| суппорта, мм/ход. | 0,3...40 |
|
| шлифголовки | 0,002...0,08 |
|
| Частота вращения шпинделя, об/мин | 2000 |
|
| Частота вращения шлифовального круга, об/мин | 1460 |
|
| Скорость шлифования при наибольшем диаметре шлифовального круга, м/сек | 34,4 |
|
| Пределы поперечной подачи стойки на ход стола, мм | 1-60 |
|
| Поперечное перемещение стойки, мм | 430 |
|
| Вертикальное перемещение шлифовальной бабки, мм | 415 |
|
| Шероховатость обработанной поверхности образца-изделия, Rа, мкм | шлифование периферией круга | 0,32 |
| шлифование торцом круга | 0,63 |
|
| Мощность главного привода, кВт | 11 |
|
| Размеры шлифовального круга, мм | 1-450х80х203 |
|
| Наибольшая масса устанавливаемой заготовки, кг | 600 |
|
| Габариты станка, мм | длина | 4810 |
| ширина | 2630 |
|
| высота | 2665 |
|
| Масса станка, кг | 7000 |
|
Плоскошлифовальный станок по металлу 3Л722В, стандартная комплектация :
- сепаратор магнитный очистки СОЖ,
- агрегат охлаждения СОЖ,
- комплектный гидропривод,
- обслуживающий инструмент,
- оправка для балансировки шлифовального круга,
- кольца поршневые,
- комплект манжет к гидроцилиндру,
- УЦИ, шлифовальный круг,
- фланец шлифовального круга,
- руководство по эксплуатации.
Шлифовальный станок 3Л722В и габариты его рабочего пространства
Видео плоскошлифовального станка 3Л722В
